Pronájem domu se zahradou Horoměřice

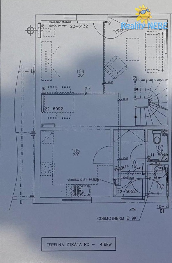
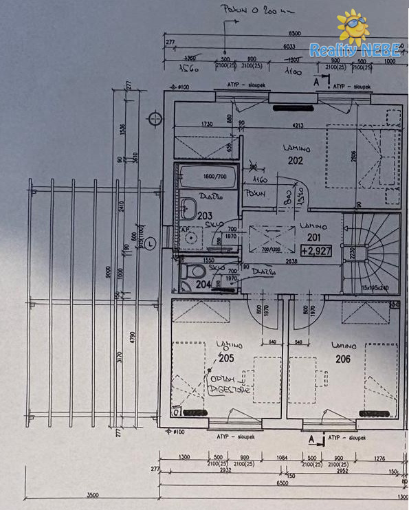
Nabízíme k dlouhodobému pronájmu rodinný dům o dispozici 4+kk a vnitřní podlahové ploše 94m2. Jedná se o jižní polovinu dvojdomku z roku 2018 se zahradou o velikosti 242m2. V přízemí domu se nachází prostorný obývací pokoj s výstupem na terasu, orientované na západní stranu. Dále plně zařízený kuchyňský kout, WC s umývadlem a technická místnost. V patře jsou 3 samostatné ložnice, koupelna s vanou a samostatné WC. Vybavení a nábytek dle dohody, možno ponechat, nebo vystěhovat. Vytápění a ohřev TUV čerpadlem, možno pro příjemnou atmosféru také využívat krbová kamna v obývacím pokoji. Lokalita je velmi klidná, jedná se o rezidenční část Horoměřic, v ulici minimální provoz. Nastěhování možné dle dohody v průběhu dubna, ideálně od 1.5., o více informací a prohlídky volejte kdykoli

Další informace

Číslo nabídky
N5345
Adresa
Horoměřice, Karla IV.
Dispozice domu
3+kk
Poloha objektu
Rohový
Druh stavby
Cihlová
Zastavěná plocha
58 m2
Celková plocha
94 m2
Užitná plocha
94 m2
Stav objektu
Velmi dobrý
Plocha pozemku/ů
300 m2
Typ domu
Patrový
Počet podlaží
2
Terasa
20 m2
Rok výstavby
2018
K dispozici od
2026-05-01
Plocha zahrady
242 m2
PENB: Náročnost budovy
G - průkaz nedodán

63 000 Kč za měsíc

+poplatky cca 7.000,-Kč


Bc. Petr Sváček
608 77 33 66
info@petr-svacek.cz

Zaujala Vás tato nemovitost?