Pronájem bytu 4+1/T 103m2 se zahradou Na Výspě Praha 4 Braník

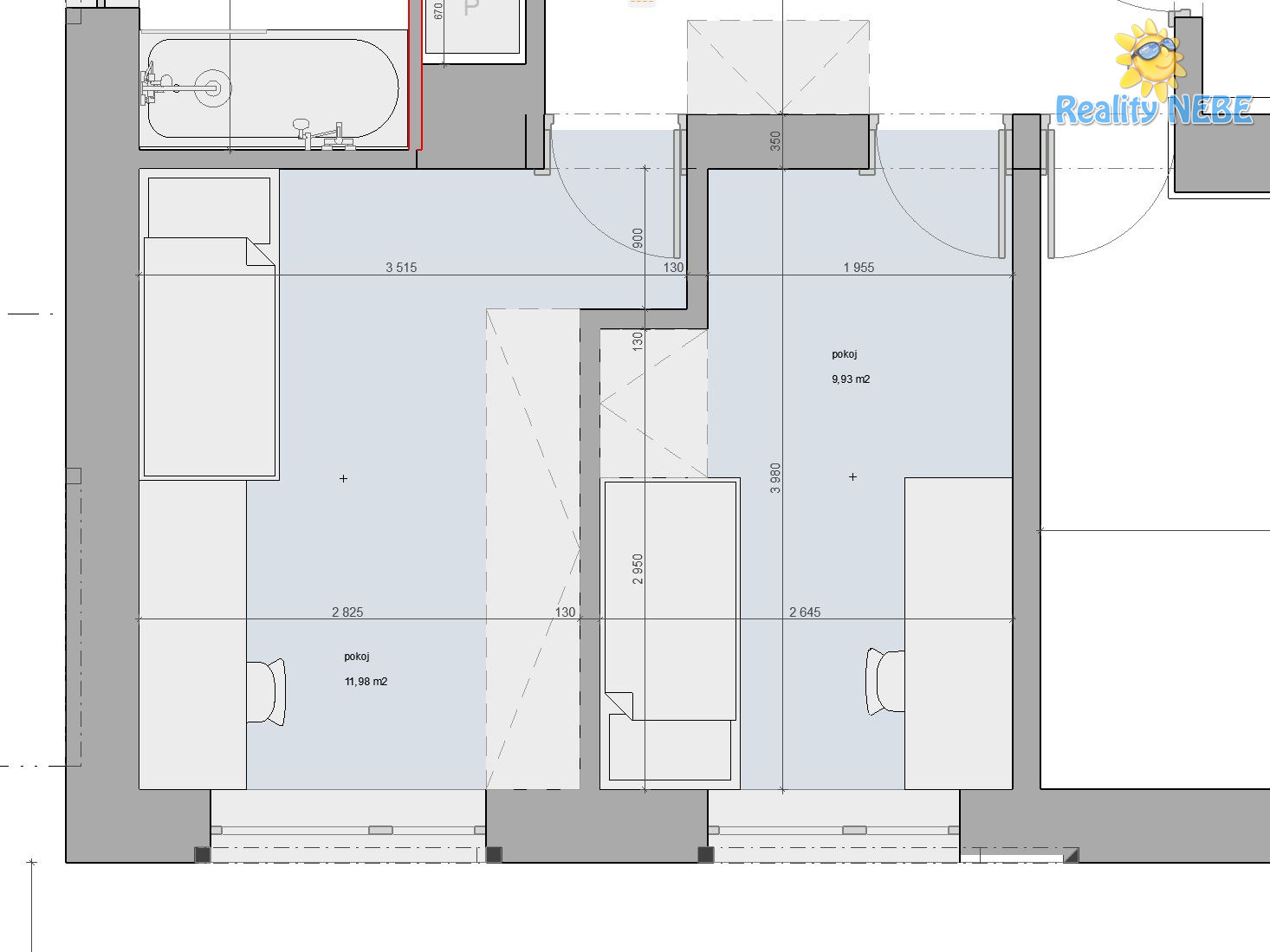
Pronájem luxusního bytu v RD 4+1 103m2 s výstupem na terasu a do zahrady určené jen vám. Byt na ulici Na Výspě Praha 4 Braník je v blízkosti OC Novodvorská. Byt má vstupní chodbu s dlažbou, samostatnou kuchyň s rohovou linkou a spotřebiči včetně myčky, Koupelnu s vanou a zástěnou, wc, přípojkou na pračku, žebrovým topením, oknem, dále 3x samostatné neprůchozí pokoje a reprezentativní obývací pokoj s krbem a výstupem na terasu a zahradu vyčleněnou jen pro tento byt. Vybaven stylovým nábytkem, lustrem. Uzavíratelná garáž (6x3,5m2)na DO za příplatek, dostatek parkovacích venkovních míst za přípatek. Dům má kamerový systém. Vytápění novou kotelnou v domě. Volný od ihned. Vhodný pro pracující nekuřáky bez dluhů.

Další informace

Číslo nabídky
N4328
Adresa
Praha 4, Na výspě
Dispozice bytu
4+1
Druh stavby
Cihlová
Celková plocha
103 m2
Užitná plocha
103 m2
Stav objektu
Po rekonstrukci
Typ domu
Patrový
Číslo podlaží
1
Počet podlaží
3
Vlastnictví
Osobní
Sklep
10 m2
Plocha zahrady
100 m2
PENB: Náročnost budovy
G - průkaz nedodán

38 000 Kč za měsíc

+ 5000 Kč poplatky+ 2500 samostatná garáž zavíratelná


Helena Dobešová
608 77 14 77
dobesova@realitynebe.cz

Zaujala Vás tato nemovitost?